Расположение
Новосибирск, Октябрьский район
Улица Никитина
Микрорайон Никитинский
Жилой комплекс Квартал Притяжение
Местоположение
Дом
Квартира
Контакты
- Новосибирск
- Октябрьский район
- Улица Никитина
- Микрорайон Никитинский
- Жилой комплекс Квартал Притяжение
- Этаж 11/25
- Год постройки 2024
- Все квартиры в этом доме
- Общая площадь 27.6 м2
- Жилая площадь 0 м2
- Агентство Владис Центральное
- Источник Авито
- Дом
- Этаж: 11/25
- Год постройки: 2024
Квартира
- Общая площадь: 27.6 м2
- Жилая площадь: 0 м2
Агентство Владис Центральное
Источник Авито
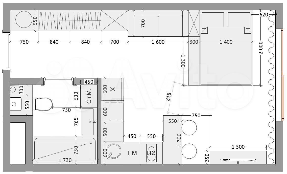
Код объекта: 1841598. Продажа просторной и светлой студии в Новосибирске по адресу улица Никитина, 67. Описание объекта: Предлагается к продаже уютная студия, расположенная на 11 этаже современного жилого дома 2024 года постройки. Общая площадь — 27,6 кв. М, из них 16 кв. М — жилое пространство, 5,6 кв. М — кухня. Высота потолков — 2,9 м, что создает ощущение простора и комфорта. Окна выходят во двор, обеспечивая тишину и спокойствие внутри квартиры. Выполнен дизайнерский ремонт с использованием современных материалов, готова к заселению. Основные характеристики. Расположение: улица Никитина, 67, Новосибирск. Этаж: 11 из 25. Общая площадь: 27,6 кв. М. Жилая площадь: 16 кв. М. Кухня: 5,6 кв. М. Год постройки дома: 2024. Тип недвижимости: студия. Цена: обсуждается при контакте. Особенности и преимущества. Современный дизайнерский ремонт. Окна выходят во двор, обеспечивая тишину и уединение. Высокие потолки (2,9 м) создают ощущение простора. Развитая инфраструктура: рядом магазины, аптеки, кафе, остановки общественного транспорта. Наземная парковка и огороженная территория для безопасности и удобства. Возможность оформления ипотеки с сниженной ставкой. Гарантируем безопасную сделку и юридическую поддержку. Дополнительная информация. Документы готовы к сделке. Возможен быстрый переезд и заселение. Помощь в одобрении ипотеки и сопровождение на всех этапах. Звоните сейчас, чтобы получить дополнительную информацию или записаться на просмотр: Не упустите возможность стать владельцем современной и светлой студии в новом доме в центре Новосибирска!