Местоположение
Дом
Квартира
Контакты
- Этаж 3/6
- Год постройки 2016
- Все квартиры в этом доме
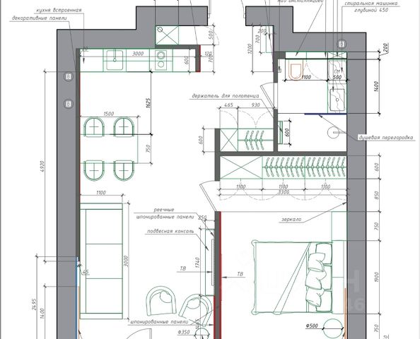
- Общая площадь 57.1 м2
- Жилая площадь 0 м2
- Агентство Евгений Зикеев
- Источник Циан
- Дом
- Этаж: 3/6
- Год постройки: 2016
Квартира
- Общая площадь: 57.1 м2
- Жилая площадь: 0 м2
Агентство Евгений Зикеев
Источник Циан
Именно с этой квартиры открывается красивый вид на всю длинну двора. Отделка: - Пол паркетная доска ясень - Потолок гипсокартон с нишами - Мебель и фасады в натуральном шпоне Американский Орех - Канальная система кондиционирования. - Стены: окрашены краской Derufa 7 - Кухонная техника Bosch - Освещение 4 вида светильников, контурная подсветка, несколько сценариев освещения. - Все горизонтальные поверхности не стандартной высоты для высоких людей - Скрытые двери - Интерьерные телевизоры - Биометрический замок - Шумоизоляция стен Один взрослый собственник, без обременений. Для показа напишите в сообщения на ЦИАН