Местоположение
Дом
Квартира
Контакты
- Новосибирск
- Ленинский район
- Улица Котовского
- Микрорайон Сад Кирова
- Этаж 7/9
- Год постройки 1970-1980
- Все квартиры в этом доме
- Общая площадь 57.1 м2
- Жилая площадь 0 м2
- Агентство Города Новосибирск Продажа
- Источник Авито
- Дом
- Этаж: 7/9
- Год постройки: 1970-1980
Квартира
- Общая площадь: 57.1 м2
- Жилая площадь: 0 м2
Агентство Города Новосибирск Продажа
Источник Авито
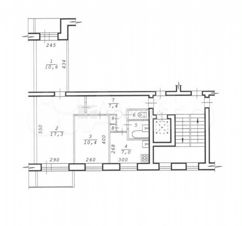
Код объекта: 1703754. Уникальное предложение на рынке недвижимости Новосибирска! Продаётся трёхкомнатная квартира площадью 57,1 кв. М на улице Котовского, 48. Это отличный выбор для тех, кто ищет комфортное жильё в развитом районе города. Квартира расположена на 7 этаже девятиэтажного кирпично-монолитного дома 1975 года постройки. Из окон открываются виды на улицу, а наличие двух балконов позволит вам насладиться свежим воздухом и прекрасным видом. Внутри квартиры выполнен косметический ремонт, что даёт возможность новым владельцам воплотить свои дизайнерские идеи. Жилая площадь составляет 38,3 кв. М, а площадь кухни — 7 кв. М. Два раздельных санузла обеспечивают дополнительное удобство для всех членов семьи. Расположение квартиры также является её преимуществом. Рядом с домом есть наземная парковка, где можно оставить автомобиль. В шаговой доступности находятся магазины, школы, детские сады и другие объекты инфраструктуры, что делает это предложение особенно привлекательным для семей с детьми. Не упустите возможность стать владельцем этой замечательной квартиры! Позвоните нам прямо сейчас, чтобы узнать больше и записаться на просмотр. Мы гарантируем безопасную сделку и юридическую поддержку нашим Клиентам. Поможем одобрить ипотеку с сниженной ставкой. Комиссия дополнительно оплачивается покупателем.