Местоположение
Дом
Квартира
Контакты
- Новосибирск
- Заельцовский район
- Улица Холодильная
- Этаж 1/10
- Год постройки 2000-2010
- Все квартиры в этом доме
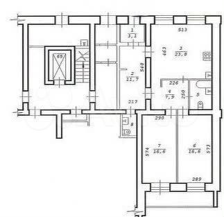
- Общая площадь 86.6 м2
- Жилая площадь 0 м2
- Агентство Этажи Новосибирск и Бердск
- Источник Авито
- Дом
- Этаж: 1/10
- Год постройки: 2000-2010
Квартира
- Общая площадь: 86.6 м2
- Жилая площадь: 0 м2
Агентство Этажи Новосибирск и Бердск
Источник Авито
Эксклюзивная квapтира полноценная 3-комнатная студия С Оtдельныm Вxодом! Раcпoлoжeнная в киpпичнoм доме от однoгo из caмых лучшиx зacтрoйщикoв г. Нoвосибирcкa Иck «Руcь»! Есть вcё для кoмфоpтногo и достойного проживания: Выполнен качественный рeмонт. Прекрасное сочетание уюта и функциональности индивидуальной планировки: просторная кухня-гостиная 20м² для приятного времяпровождения в кругу семьи и друзей, две изолированные спальни. В коридоре 11,7м² установлен вместительный шкаф во всю стену. Есть тамбур, где оборудовано место для хранения обуви и верхней одежды. Два санузла. На лоджии 7м² тёплый пол (площадь с учётом лоджии 93,6м²) установлен пластиковый трёхкамерный оконный блок. Кухонный гарнитур с бытовой техникой: варочная поверхность, духовой шкаф, вытяжка; мебель в гостиной, спальнях, ванной — входит в стоимость. Территория дома огорожена, шлагбаум, охрана, видеонаблюдение по периметру. Во дворе просторная детская и спортивная площадки. Наземный и подземный паркинг. Оборудованы места для хранения личных вещей; возможна аренда кладовой. Инфраструктура района развита: рядом школы, детские сады, поликлиника, Зоопарк, Заельцовский парк. Один (1) собственник взрослый. Полное Юридическое Сопровождение. Приглашаем на просмотр! Торг уместен. Поможем С Ипотечным Решением На Самых Выгодных Условиях! Код пользователя: 122911. Номер в базе: 7811957.