Местоположение
Дом
Квартира
Контакты
- Новосибирская область
- Колывань рабочий поселок
- Улица Шоссейная 1-я
- Этаж 1/2
- Материал Кирпич
- Все квартиры в этом доме
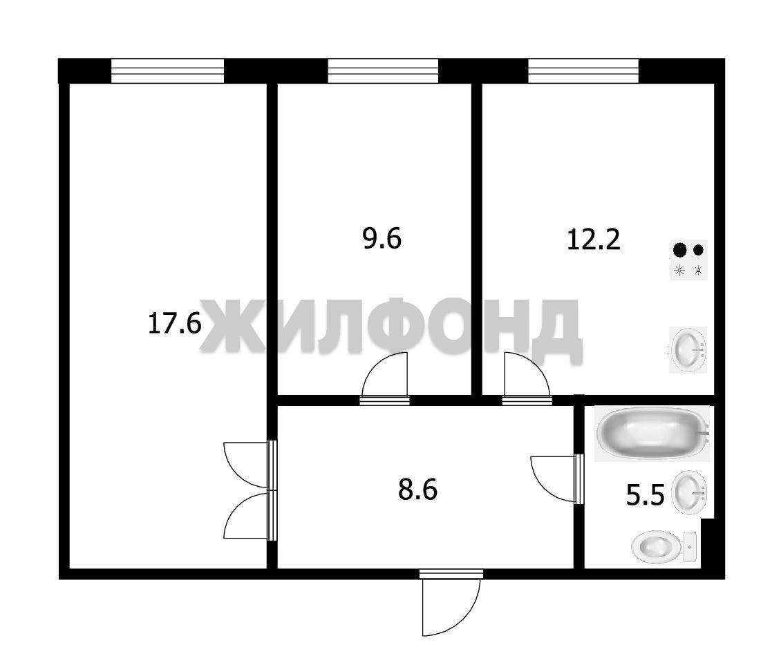
- Общая площадь 51.5 м2
- Жилая площадь 27.2 м2
- Площадь кухни 12.2 м2
- Санузел Совмещенный
- Агентство ЖИЛФОНД
- Наталья Николаевна
- +7 (962) 836-77-16 Написать
- Дом
- Этаж: 1/2
- Материал: Кирпич
Квартира
- Общая площадь: 51.5 м2
- Жилая площадь: 27.2 м2
- Площадь кухни: 12.2 м2
- Санузел: Совмещенный
Агентство ЖИЛФОНД
Наталья Николаевна +7 (962) 836-77-16
2 комн. квартира по ул. Шоссейная. Общей площадью: 51.50 кв.м. Продается уютная двухкомнатная квартира в малоэтажном доме в р.п. Колывань по адресу: улица Шоссейная, дом 33. Общая площадь квартиры составляет 51.5 кв.м., расположена на первом этаже двухэтажного кирпичного дома. Все комнаты изолированные. Квартира светлая, теплая. Окна выходят на другую сторону от дороги, поэтому машин не слышно. Этаж высокий. В квартире также есть небольшой подпол, где можно хранить овощи и соления. Рядом с домом есть свой участок, на котором садят зелень, овощи, цветы и т.д. В случае покупки, покупателю при желании останется кухонный гарнитур и прихожая. Квартира подходит для комфортного проживания семьи или для сдачи в аренду. В квартире выполнен качественный ремонт, использованы современные материалы. Окна выходят на солнечную сторону, что обеспечивает хорошую естественную освещенность и свежий воздух. Инфраструктура района развита: в пешей доступности находятся магазины, аптеки, банки, детские сады и школы. В шаговой доступности также находятся остановки общественного транспорта, что обеспечивает удобную транспортную доступность к любой точке. Колывань - это красивый и уютный поселок, окруженный живописной природой. Здесь можно насладиться чистым воздухом и красивыми пейзажами. В поселке есть множество развлекательных и культурных мероприятий для любого возраста. Не упустите возможность приобрести уютную квартиру в тихом и спокойном районе Колывани. Звоните прямо сейчас и мы организуем для вас просмотр объекта в удобное время или ждем вас в нашем офисе по адресу: рп.Колывань, ул.Ленина, д.54! Рядом с объектом находятся:1 детский сад,5 продуктовых магазинов,1 колледж. Возможен обмен на вашу недвижимость. Возможна продажа в рассрочку. При звонке, пожалуйста, сообщите номер варианта - JV002054164195