Местоположение
Дом
Квартира
Контакты
- Новосибирск
- Дзержинский район
- Улица Коминтерна
- Жилой комплекс Red Fox (Рэдфокс)
- Этаж 1/22
- Год постройки 2024
- Все квартиры в этом доме
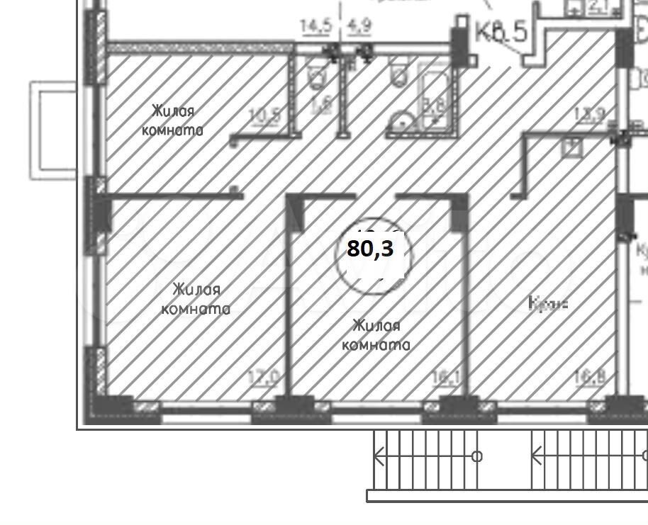
- Общая площадь 80.3 м2
- Жилая площадь 0 м2
- Собственник
- Источник Авито
- Дом
- Этаж: 1/22
- Год постройки: 2024
Квартира
- Общая площадь: 80.3 м2
- Жилая площадь: 0 м2
Собственник
Источник Авито
Отличная квартира в новом ЖК! Продается уютная 3-комнатная квартира. Адрес: г. Новосибирск, ул. Коминтерна, д. 128. Описание квартиры: Квартира расположена на 1 этаже 22-этажного монолитного дома. Общая площадь: 80,3 кв. М. Комнаты: раздельные (17 кв. М., 16 и 11 кв. М.). Кухня-зал — 17 кв. М. Санузел: раздельный и полноценная ванна. В квартире установлены пластиковые окна, предчистовая отделка, полностью вся электропроводка, ровные полы — по отделке требуется только финишный ремонт. Описание порядка продажи: Прямая продажа от собственника. В квартире никто не прописан. Два взрослых собственника (супруги). Район и инфраструктура: Дом находится в зеленом и спокойном районе с развитой инфраструктурой. В шаговой доступности расположены магазины, школы, детские сады и поликлиники. Во дворе дома есть удобная парковка и есть подземный паркинг. Недалеко от дома находится парк для прогулок. Соседи дружелюбные и отзывчивые.