Местоположение
Дом
Квартира
Контакты
- Новосибирск
- Калининский район
- Улица Земнухова
- Микрорайон Родники, 6-й микрорайон
- Этаж 7/10
- Год постройки 1990-2000
- Все квартиры в этом доме
- Общая площадь 79.3 м2
- Жилая площадь 0 м2
- Агентство Эксперт Дом
- Источник Циан
- Дом
- Этаж: 7/10
- Год постройки: 1990-2000
Квартира
- Общая площадь: 79.3 м2
- Жилая площадь: 0 м2
Агентство Эксперт Дом
Источник Циан
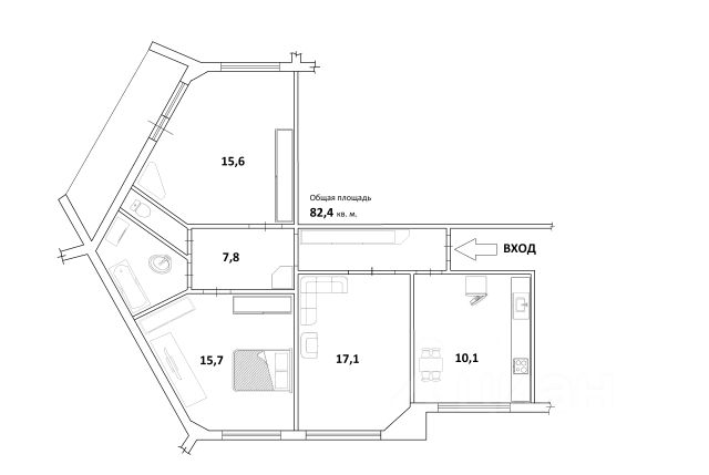
Продаётся просторная трёхкомнатная квартира площадью 79.3 квадратных метра на улице Земнухова, 8 в живописном районе Новосибирска жилмассиве Родники. Квартира расположена на седьмом этаже десятиэтажного панельного дома, построенного в 1994 году. Пространство квартиры грамотно организовано: жилая зона занимает 48.4 квадратных метра, что позволяет комфортно разместиться всей семье; кухня имеет площадь 10.1 квадратного метра, где удобно готовить и проводить время за семейными ужинами. Комнаты раздельные, каждая может стать уютной спальней или рабочим кабинетом. Санузел также разделён на две зоны, что добавляет удобства при использовании пространства. Из окон открывается приятный вид как во двор, так и на улицу, позволяя наслаждаться спокойствием района и одновременно оставаться в курсе городской жизни. Наличие балкона предоставляет дополнительное пространство для отдыха или хранения вещей. Для молодых родителей важно отметить, что рядом расположены школа и детский сад, а детская площадка прямо во дворе позволит детям безопасно играть под присмотром взрослых. Также поблизости находятся торговый центр и фитнес-клуб, что делает жизнь более комфортной и разнообразной. Дополнительно стоит упомянуть парковку со шлагбаумом, которая обеспечит безопасность вашего автомобиля от посторонних глаз и случайных повреждений. Эта квартира станет прекрасным выбором для тех, кто ценит комфортное проживание вдали от шума центральных улиц города, предпочитая тихий район с развитой инфраструктурой и приятным окружением. Приглашаем вас ознакомиться с квартирой лично и убедиться, насколько она подходит именно вам и вашей семье.