Расположение
Новосибирск, Центральный район
Улица Ермака
Метро Красный пр-кт - Сибирская
Жилой комплекс Наутилус
Местоположение
Дом
Квартира
Контакты
- Новосибирск
- Центральный район
- Улица Ермака
- Метро Красный пр-кт - Сибирская
- Жилой комплекс Наутилус
- Этаж 3/8
- Год постройки 2024
- Все квартиры в этом доме
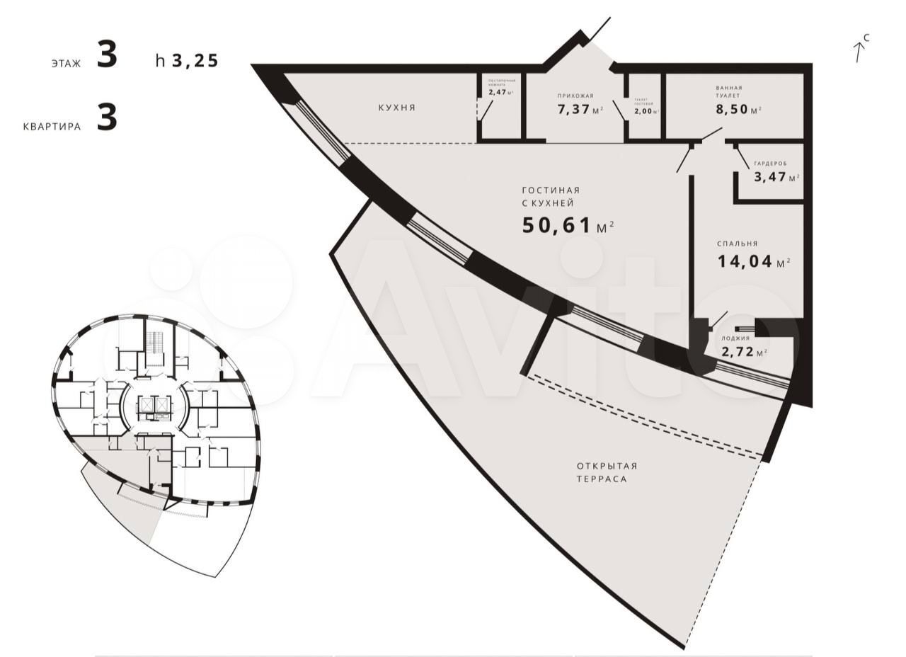
- Общая площадь 88.5 м2
- Жилая площадь 0 м2
- Агентство Города Новосибирск Продажа
- Источник Авито
- Дом
- Этаж: 3/8
- Год постройки: 2024
Квартира
- Общая площадь: 88.5 м2
- Жилая площадь: 0 м2
Агентство Города Новосибирск Продажа
Источник Авито
ID 32786. Вы Можете Себе Позволить Этот Эксклюзив! Роскошь не может стоить копейки, поэтому предлагается квартира в доме на сдаче в самом центре Новосибирска от юридического лица. Комиссий нет… Просторная двухкомнатная квартира в Наутилусе на 3 этаже с прекрасным видом с собственной террасы. 3 этаж Наутилуса располагается на уровне обычного четвертого. Квартира оригинальной формы в необычном доме, с окнами в сторону Советской. Высокие потолки 3,25 м, проемы входных и межкомнатных дверей 2,6 м и огромные панорамные окна создают поразительное ощущение воздуха в квартире. Площадь кухни-гостиной почти 50 кв. М, в ней 4 огромных окна и теплая лоджия с отделкой клинкерным кирпичом и остеклением в пол. В квартире 2 санузла: гостевой и приватный. Великолепная мастер-спальня, в которой предусмотрена отдельная гардеробная комната. Для хранения средств и техники для уборки, а также для стирки и глажки также выделено отдельное помещение. Площадь террасы не входит в общую площадь. По замыслу архитекторов, эта квартира создана для максимально комфортного проживания семьи из трех или четырех человек. В Наутилусе возможно все! Поэтому все планировки квартир являются свободными и могут меняться под любые потребности. Разные варианты оплаты: 1. Наличный (безналичный) расчет. 2. Обычная ипотека от 16.9% годовых. 3. Лизинг (экономия на налогах). 4. Рассрочка без процентов (без банков). Индивидуальное рассмотрение. Звоните прямо сейчас и записывайтесь на экскурсию! И квартира может стать Вашей!