Местоположение
Дом
Квартира
Контакты
- Новосибирск
- Центральный район
- Улица Лермонтова
- Метро Маршала Покрышкина
- Этаж 6/9
- Год постройки 1970-1980
- Все квартиры в этом доме
- Общая площадь 59.3 м2
- Жилая площадь 0 м2
- Агентство Борис Анатольевич
- Источник Авито
- Дом
- Этаж: 6/9
- Год постройки: 1970-1980
Квартира
- Общая площадь: 59.3 м2
- Жилая площадь: 0 м2
Агентство Борис Анатольевич
Источник Авито
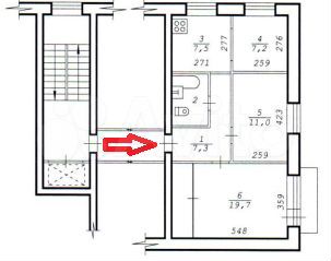
В продаже квартира с большой кухней гостиной перепланирована с 3-комнатной квартиры(все узаконено). Удобная планировка все комнаты изолированы, в большой комнате есть гардеробная. Окна пластиковые. Квартира расположена на 6 этаже 9-этажного кирпичного дома 1973 года постройки. В доме есть пассажирский лифт. Вся мебель и бытовая техника остается. Район хорошо развит: рядом находятся школы, детские сады, клиники и магазины. В шаговой доступности находятся 3 станции метро: Маршала Покрышкина, Красный проспект и Сибирская, до которых всего несколько минут. В 3 минутах ТЦ «Галерея», «Гастрокорт» на Центральном рынке. Дом расположен в тихом квартале. Зеленый уютный двор. Документы готовы к сделке. Ипотека возможна. Материнский Капитал в квартире не использован, собственник 1 взрослый. Показ по договоренности.