Местоположение
Дом
Квартира
Контакты
- Новосибирск
- Дзержинский район
- Улица Доватора
- Микрорайон Волочаевский
- Этаж 2/9
- Материал Панель
- Год постройки 1970-1980
- Все квартиры в этом доме
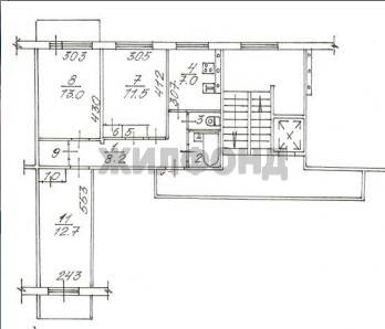
- Общая площадь 62.2 м2
- Жилая площадь 37.2 м2
- Площадь кухни 7 м2
- Санузел Раздельный
- Агентство ЖИЛФОНД
- Татьяна Александровна
- +7 (383) 277-03-04 Написать
- Дом
- Этаж: 2/9
- Материал: Панель
- Год постройки: 1970-1980
Квартира
- Общая площадь: 62.2 м2
- Жилая площадь: 37.2 м2
- Площадь кухни: 7 м2
- Санузел: Раздельный
Агентство ЖИЛФОНД
Татьяна Александровна +7 (383) 277-03-04
3 комн. квартира по ул. Доватора. Общей площадью: 62.20 кв.м. Продаётся трёхкомнатная квартира — место, где будет комфортно всей семье! В квартире каждая комната изолирована — никто не помешает вашему отдыху или работе. А ещё здесь есть удобная гардеробная, где легко разместить весь гардероб и сохранить порядок в жилых помещениях. Почему эта квартира — именно то, что вы ищете? Комфорт для каждого члена семьи. Три комнаты позволяют организовать личное пространство для всех: детская, спальня родителей, кабинет или гостиная — решайте сами! Школа прямо во дворе. Больше не нужно переживать о долгой дороге ребёнка в школу — всё рядом! Вся инфраструктура — в шаговой доступности: магазины — за продуктами ходить удобно и быстро., поликлиника — забота о здоровье семьи всегда под рукой., библиотека — для любителей чтения и спокойного досуга., детские сады — рядом с домом, что особенно важно для семей с малышами. Удобная транспортная доступность. До станции метро Золотая Нива — всего 2 остановки. Легко добраться в любую точку города! Это не просто квартира — это пространство для счастливой семейной жизни, где продумана каждая деталь для вашего комфорта. Звоните! С радостью отвечу на все вопросы, организую показ и помогу вам сделать лучший выбор. Без обременений, полная стоимость в договоре. Помощь в оформлении ипотеки — проконсультируем по всем вопросам и поможем собрать документы При покупке данного объекта недвижимости, покупатель дополнительно оплачивает комиссионное вознаграждение, которое включает в себя услуги по оформлению документов и сопровождению сделки. Это позволяет обеспечить максимальную прозрачность и безопасность при совершении Рядом с объектом находятся:3 школы,4 детских сада,12 продуктовых магазинов,4 спортивных учреждения. Возможен обмен на вашу недвижимость. Возможна продажа в рассрочку. При звонке, пожалуйста, сообщите номер варианта - JV003054144656