Местоположение
Дом
Квартира
Контакты
- Новосибирская область
- Тогучин
- Этаж 2/2
- Материал Дерево
- Все квартиры в этом доме
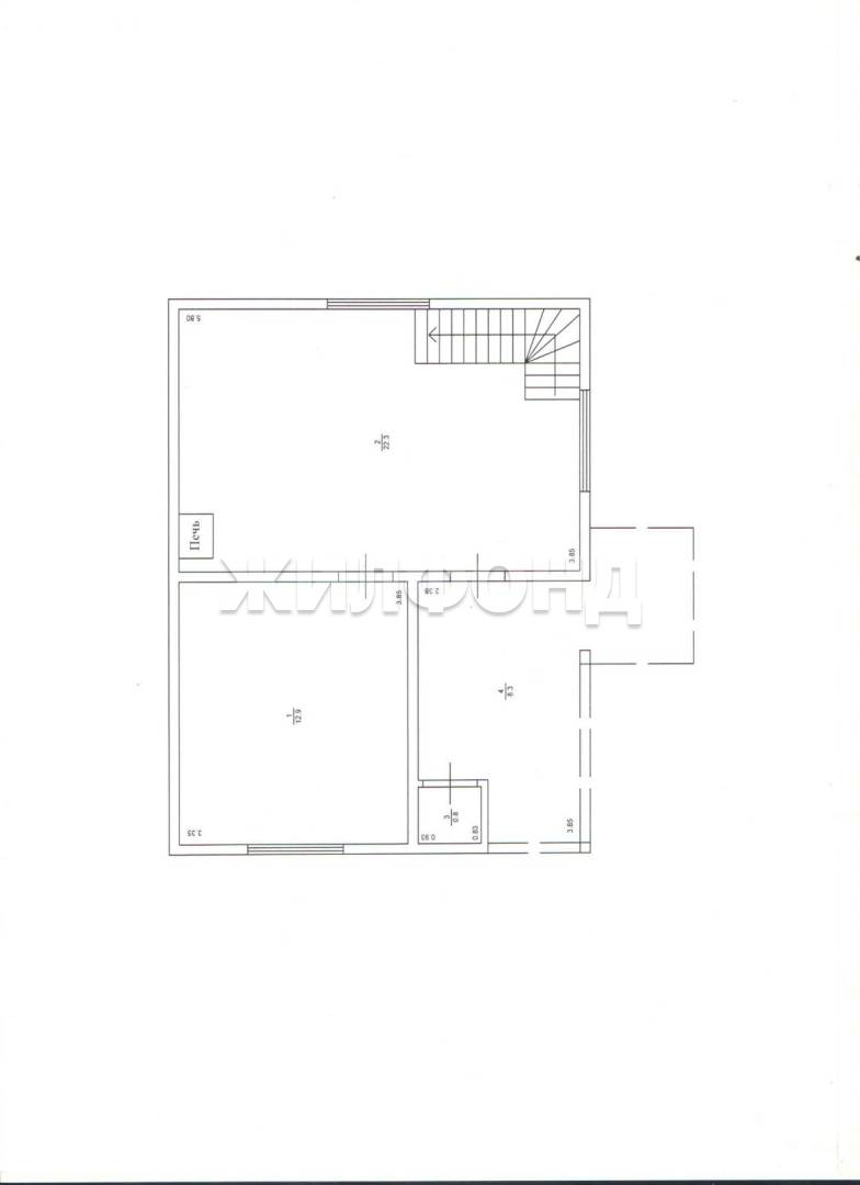
- Общая площадь 83.8 м2
- Жилая площадь 34.9 м2
- Площадь кухни 22.3 м2
- Агентство ЖИЛФОНД
- Светлана Александровна
- +7 (965) 828-04-34 Написать
- Дом
- Этаж: 2/2
- Материал: Дерево
Квартира
- Общая площадь: 83.8 м2
- Жилая площадь: 34.9 м2
- Площадь кухни: 22.3 м2
Агентство ЖИЛФОНД
Светлана Александровна +7 (965) 828-04-34
Дом по ул. ст Электротранспортник. Общей площадью: 83.80 кв.м. Продается просторный двухэтажный дом в Тогучинском районе , С.т Электротранспортник Общая площадь дома составляет 83.8 кв.м. Дом расположен в тихом и уютном районе, где можно насладиться спокойствием и красотой природы. Дом имеет удобную планировку и состоит из двух этажей. На первом этаже расположена просторная кухня-гостиная, где можно собираться всей семьей для общения и приготовления вкусных блюд. На втором этаже расположены три уютные спальни. Дом в отличном состоянии, выполнен качественный ремонт с использованием современных материалов. Звоните и приходите на просмотр прямо сейчас! Возможен обмен на вашу недвижимость. Возможна продажа в рассрочку. При звонке, пожалуйста, сообщите номер варианта - JV080541105281