Местоположение
Дом
Квартира
Контакты
- Новосибирск
- Ленинский район
- Улица Спортивная
- Микрорайон Чистая Слобода
- Этаж 3/11
- Материал Монолит
- Год постройки 2015
- Все квартиры в этом доме
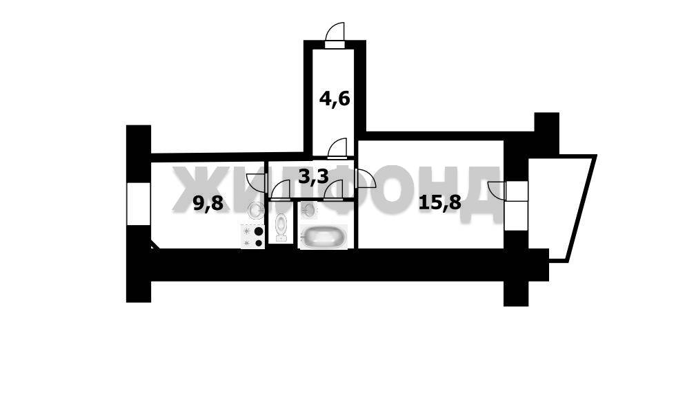
- Общая площадь 37.2 м2
- Жилая площадь 15.8 м2
- Площадь кухни 9.8 м2
- Санузел Раздельный
- Балкон / Лоджия Есть
- Агентство ЖИЛФОНД
- Светлана Михайловна
- +7 (960) 797-25-28 Написать
- Дом
- Этаж: 3/11
- Материал: Монолит
- Год постройки: 2015
Квартира
- Общая площадь: 37.2 м2
- Жилая площадь: 15.8 м2
- Площадь кухни: 9.8 м2
- Санузел: Раздельный
- Балкон / Лоджия: Есть
Агентство ЖИЛФОНД
Светлана Михайловна +7 (960) 797-25-28
1 комн. квартира по ул. Спортивная. Общей площадью: 37.20 кв.м. Уютная однокомнатная квартира 37,2 м2 с улучшенной планировкой в популярном районе города Чистая слобода ищет своего хозяина! Документы проверены юристом, готовы к сделке. Просторная светлая комната дополнена удобной лоджией, где можно обустроить зону отдыха или дополнительное рабочее пространство. Комфортный 3-й этаж. Раздельный санузел. В квартире остается кухонный гарнитур без бытовой техники, водонагреватель, шкаф на лоджии. Отличное расположение дома: - во дворе дома находится детский сад №472 Тигренок. - в шаговой доступности 2 детских сада, школа №215, спортивный комплекс Заря. - в доме находится магазин Мария-ра, пункт выдачи Озон. Рядом расположены магазины, аптеки, пункты выдачи и т.д. - хорошая транспортная развязка: в 5 мин ходьбы остановка автобусов, конечная остановка трамвая, в пешей доступности - ж.д станция Ипподром. - во дворе дома расположены 2 детских площадки, хоккейная коробка, вокруг дома большое количество парковочных мест. Подходит под все виды расчетов. Идеальное предложение для тех, кто ценит комфорт и функциональность жилья. Для иногородних покупателей возможен онлайн-показ, дистанционный задаток и межрегиональная сделка! Рядом с объектом находятся:1 школа,3 детских сада,8 продуктовых магазинов,1 спортивное учреждение. Возможен обмен на вашу недвижимость. Возможна продажа в рассрочку. При звонке, пожалуйста, сообщите номер варианта - JV010541103701