Местоположение
Дом
Квартира
Контакты
- Новосибирская область
- Колывань рабочий поселок
- Улица Лермонтова
- Этаж 2/2
- Материал Дерево
- Все квартиры в этом доме
- Общая площадь 140.9 м2
- Жилая площадь 95 м2
- Площадь кухни 20 м2
- Агентство ЖИЛФОНД
- Елена Любомировна
- +7 (962) 839-15-50 Написать
- Дом
- Этаж: 2/2
- Материал: Дерево
Квартира
- Общая площадь: 140.9 м2
- Жилая площадь: 95 м2
- Площадь кухни: 20 м2
Агентство ЖИЛФОНД
Елена Любомировна +7 (962) 839-15-50
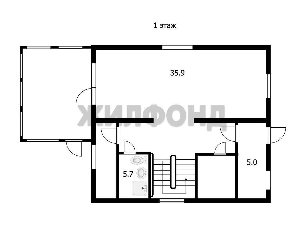
Коттедж по ул. Лермонтова. Общей площадью: 140.90 кв.м. Продаётся коттедж в поселке Колывань на улице Лермонтова. Общая площадь коттеджа составляет 140.9 кв.м., расположенный на двух этажах в двухэтажном здании. Коттедж имеет все необходимые коммуникации, а также современный ремонт и оборудование. На втором этаже 3 изолированные комнаты и санузел, на первом просторная кухня-гостиная, веранда с выходом на внутренний двор, санузел, коридор, прихожая, техническая комната с газовым котлом и электрокотлом. Коттедж подходит для комфортного проживания семьи из 4-6 человек. На участке 8 соток также есть баня, просторный гараж с ямой и удобным погребом для хранения овощей, дополнительный парковочный въезд. На заднем дворе обустроен сад с грядками и теплицей, в которой установлена система капельного полива. Вокруг коттеджа расположена развитая инфраструктура поселка Колывань. В шаговой доступности находятся магазины, детский сад, осуществляется подвоз учеников школьным автобусом. Для любителей активного образа жизни в окрестностях Колывани есть множество маршрутов для пеших и велосипедных прогулок. В Колывани есть спортивный комплекс с тренажерным залом. Также в поселке есть футбольное поле и множество кружков и секций. Коттедж идеально подойдет для семейного проживания или как инвестиционный объект. Вы можете приобрести его для сдачи в аренду или использовать как дачу для отдыха на выходных и праздников. Цена коттеджа - 10300000 рублей, что является отличным вариантом за качественное жилье в таком развитом районе города. Не упустите свой шанс приобрести это уютное и комфортное жилье в Колывани. Звоните прямо сейчас, или обращайтесь в офис по адресу р.п. Колывань, ул. Ленина 54, и мы с удовольствием организуем для вас просмотр объекта и ответим на все ваши вопросы. Ждем вас! Возможен обмен на вашу недвижимость. Возможна продажа в рассрочку. При звонке, пожалуйста, сообщите номер варианта - JV080541101972