Местоположение
Дом
Квартира
Контакты
- Новосибирск
- Ленинский район
- Улица Степная
- Микрорайон Чистая Слобода
- Этаж 1/10
- Материал Панель
- Год постройки 2023
- Все квартиры в этом доме
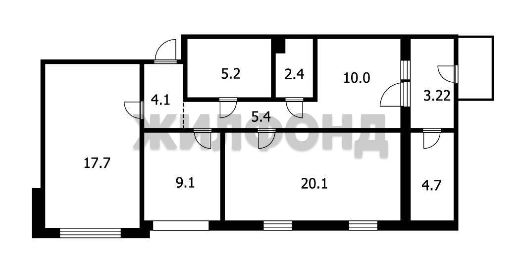
- Общая площадь 78.7 м2
- Жилая площадь 46.9 м2
- Площадь кухни 10 м2
- Балкон / Лоджия Есть
- Агентство ЖИЛФОНД
- Надежда Николаевна
- +7 (968) 221-45-78 ЦианАвито
- Дом
- Этаж: 1/10
- Материал: Панель
- Год постройки: 2023
Квартира
- Общая площадь: 78.7 м2
- Жилая площадь: 46.9 м2
- Площадь кухни: 10 м2
- Балкон / Лоджия: Есть
3 комн. квартира по ул. Степная. Общей площадью: 78.70 кв.м. УНИКАЛЬНЫЙ ВАРИАНТ ! Предлагаем вашему вниманию эксклюзивную 3х-комнатную квартиру премиум-класса общей площадью 82 квадратных метра! на 1-м этаже новенького жилого комплекса, идеально подходящую для больших семей, деловых владельцев бизнеса или любителей особого комфорта. Почему именно эта квартира привлечёт ваше внимание? - ОТДЕЛЬНЫЙ ВХОД: Стильный и удобный выход из квартиры, позволяющий обустроить собственное мини-пространство для творчества или коммерческой деятельности. - ПРОДУМАННАЯ ПЛАНИРОВКА: Оптимально расположенные изолированные комнаты, большая кухня. Панорамные окна наполняют помещение естественным светом, придавая интерьеру воздушность и свежесть. -ШИРОКИЕ ДВЕРНЫЕ ПРОЁМЫ: наличие пандусов и широких дверей обеспечивает легкость передвижения даже людям с ограниченными возможностями - ФУНКЦИОНАЛЬНАЯ КЛАДОВКА: Отдельная удобная комната площадью 5 кв. м. позволит хранить вещи без ущерба жилым пространствам. - ЕВРОРЕМОНТ: Высококачественный ремонт выполнен профессионалами с использованием современных материалов и технологий. - ВСЁ ВКЛЮЧЕНО: Уже установлен полный комплект бытовой техники премиум класса, включающей холодильник, плиту, духовку и посудомоечную машину. - УДОБСТВО ДЛЯ ВСЕХ ЧЛЕНОВ СЕМЬИ: Два полноценных санузла позволят избежать утренних очередей и сохранить личное пространство каждого члена семьи. - ПРОСТОРНАЯ ЛОДЖИЯ: Небольшой островок спокойствия и вдохновения, прекрасный уголок для завтраков на свежем воздухе. - ИДЕАЛЬНАЯ ИНФРАСТРУКТУРА: Близость всех необходимых учреждений — школ, детских садов, медицинских центров, магазинов и зон отдыха позволяет создать комфортные условия для полноценной жизни вашей семьи. - УДОБНЫЕ ТРАНСПОРТНЫЕ СВЯЗИ: Все виды городского транспорта в шаговой доступности обеспечат быстрое перемещение по городу. Эта квартира станет идеальным выбором для любого покупателя, будь то семья с маленькими детьми, пожилыми родителями, или владелец малого бизнеса, ищущий идеальное местоположение своего офиса. Цена продажи составляет всего 7 290 000 рублей, что делает эту квартиру настоящей находкой на современном рынке недвижимости. Торопитесь забронировать просмотр и сделайте выгодное приобретение, которое сделает вашу жизнь лучше уже сегодня! Позвоните сейчас, пока квартира мечты доступна каждому! Ключи в Агентстве! Возможен обмен на вашу недвижимость. Возможна продажа в рассрочку. При звонке, пожалуйста, сообщите номер варианта - JV003054143045