Местоположение
Дом
Квартира
Контакты
- Новосибирская область
- Ордынское рабочий поселок
- Улица Обская
- Этаж 1/2
- Материал Бетонные блоки
- Все квартиры в этом доме
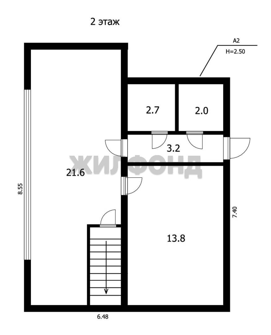
- Общая площадь 122.4 м2
- Жилая площадь 54.8 м2
- Площадь кухни 21.6 м2
- Санузел Раздельный
- Агентство ЖИЛФОНД
- Оксана Николаевна
- +7 (964) 096-28-78 Написать
- Дом
- Этаж: 1/2
- Материал: Бетонные блоки
Квартира
- Общая площадь: 122.4 м2
- Жилая площадь: 54.8 м2
- Площадь кухни: 21.6 м2
- Санузел: Раздельный
Агентство ЖИЛФОНД
Оксана Николаевна +7 (964) 096-28-78
Дом по ул. Обская. Общей площадью: 122.40 кв.м. ПРЕДЛАГАЕТСЯ К ПРОДАЖЕ УНИКАЛЬНЫЙ ВАРИАНТ!!! РЕАЛЬНОМУ ПОКУПАТЕЛЮ ХОРОШИЙ ТОРГ!! КВАРТИРА на земле 2019 года постройки в 2х квартирном доме. Квартира построена как 2х этажный дом, материал сибит. Утеплен и обшит сайдингом ,фундамент железобетон., вода скважина - в доме, электричество, газ центральный- заведен в дом , туалет в доме и на улице, канализация автономная. В доме погреб оборудован для хранения. Участок 11 соток в собственности на котором находятся хоз. постройки, капитальный гараж, баня, утепленная постройка для содержания животных (птиц) с печкой. Квартира находится р.п. Ордынское, это достаточно крупный поселок в 100 км, от Новосибирска, хорошая транспортная доступность, ходит рейсовый автобус и маршрутное такси, есть автовокзал, достаточно крупных и мелких предприятий, что позволяет без проблем найти работу. Вокруг живописные места, река в пяти минутых, озера. Ордынская средняя общеобразовательная школа №3, МКОУ (606 м.) Продукты - Магазин (334 м.) - Магазин (376 м.) - Киоск (396 м.) - Магазин (403 м.) - Магазин (448 м.) Возможен обмен на вашу недвижимость. Возможна продажа в рассрочку. При звонке, пожалуйста, сообщите номер варианта - JV005054100727